 
                                                                                                        Veľký, čiastočne zrekonštruovaný rodinný dom v centre obce, len 10 min. od Trnavy
- Predaj
- Rodinný dom
- 310.5 m2
- Cífer
Exkluzívne iba u nás na predaj pozemok so stavebným povolením, projektom a základmi na rodinný dom. Nachádza sa v tichej uličke len 10 km od Trnavy, v obci Suchá nad Parnou. Pozemok má výmeru 555 m² a ideálne rozmery 20 m x 27,5 m. Ponúka investičný potenciál a krásny výhľad na Malé Karpaty. Pred pozemkom je nová betónová cesta, chodník a verejné osvetlenie.
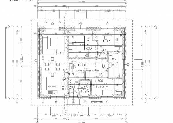
Rodinný dom:
Kúpou tohto pozemku získate aj projektovú dokumentáciu a právoplatné stavebné povolenie vydané obcou Suchá nad Parnou na jednopodlažný 4-izbový rodinný dom so zastavanou plochou 100 m². Na pozemku už sú vybudované základy na rodinný dom.
IS - vodovod, kanalizácia, plyn. El. prípojka na pozemku. 
V prípade záujmu možnosť dokončenia stavby do štádia podľa dohody. 
Dispozícia domu:
Lokalita:
Obec Suchá nad Parnou je vzdialená cca 10 km severozápadne od krajského mesta Trnava. Nájdete tu veľmi dobrú občiansku vybavenosť ako potraviny, pošta, materská aj základná škola, zdravotné stredisko, lekáreň, reštaurácie, záhradkárstvo, ai. Pozemok je situovaný v novovybudovanej časti Diely, neďaleko rekreačnej oblasti Suchovskej priehrady a okolitého hája, ideálne na príjemné prechádzky, rybolov, člnkovanie, hubárčenie... 
Cena a služby:
V uvádzanej cene je zahrnuté všetko od kompletného právneho servisu, vypracovania zmluvnej dokumentácie, prevodu vlastníckych práv až po protokolárne odovzdanie nehnuteľnosti. Taktiež je v cene projektová dokumentácia a stavebné povolenie a vybudované základy rodinného domu. V prípade potreby Vám bezplatne zabezpečíme aj financovanie prostredníctvom hypotekárneho úveru. 
Srdečne Vás pozývam na obhliadku, ktorá je možná 7 dní v týždni. Raz vidieť je viac ako 100krát počuť :)
Zaujala Vás táto ponuka? Neváhajte ma kontaktovať a dohodnúť si nezáväznú obhliadku.
Veronika Dedáčková 
+421 911 290 837
dedackova@nikareal.sk
| Ulica: | Diely | 
|---|---|
| Obec: | Suchá nad Parnou | 
| Okres: | Trnava | 
| Kraj: | Trnavský kraj | 
| Druh: | Domy | 
| Typ: | Predaj | 
| Typ domu: | Rodinný dom |