
Veľký, čiastočne zrekonštruovaný rodinný dom v centre obce, len 10 min. od Trnavy
- Predaj
- Rodinný dom
- 310.5 m2
- Cífer
Exkluzívne iba u nás na predaj krásny, nízkoenergetický 4-izbový rodinný dom vo vyhľadávanej lokalite, len pár minút od krajského mesta Trnava.
V cene je dokončenie do štádia holodom s terasou, parkovaním pre 3 autá, oplotením, tepelným čerpadlom aj prípravou na solárne / fotovoltaické panely, prípravou na exteriérové žalúzie, videovrátnika, alarm aj kamerový systém.
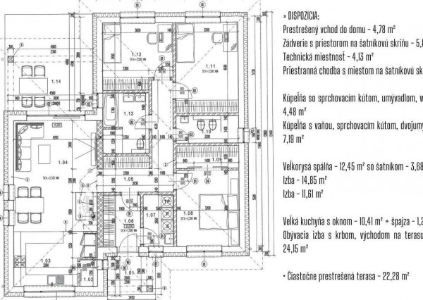
DISPOZÍCIA:
LOKALITA:
Výhodou je výborná lokalita. Dom sa na chádza v slepej uličke len pár minút jazdy autom od Trnavy, v obci Biely Kostol. Cyklochodníkom sa dostanete až do centra Trnavy.
V pešej dostupnosti je veľmi dobrá občianska vybavenosť. Nájdete tu potraviny, materskú aj základnú školu, lekáreň, pizzeriu, kaviareň, záhradkárstvo, pneuservis, ai. Táto lokalita poskytuje široké možnosti na voľnočasové aktivity. V blízkosti nájdete rôzne športoviská, rybník, kúpalisko, golfové ihrisko, cyklotrasy. Na turistiku môžete využiť Malé Karpaty, ktoré sú vzdialené len 15 min. jazdy autom.
CENA a SLUŽBY:
Cena je vrátane kompletného realitného a právneho servisu, vypracovania zmluvnej dokumentácie, prevodu vlastníckych práv, protokolárneho odovzdania nehnuteľnosti a prepisu energií. Nehnuteľnosť Vám bude odovzdaná spolu s kompletnou projektovou dokumentáciou, revíznymi správami a energetickým certifikátom triedy A0. V prípade potreby Vám zabezpečíme aj financovanie nehnuteľnosti prostredníctvom hypotekárneho úveru.
Srdečne Vás pozývam na obhliadku, ktorá je možná 7 dní v týždni. Raz vidieť je viac ako 100krát počuť :)
Zaujala Vás táto ponuka? Neváhajte ma kontaktovať a dohodnúť si nezáväznú obhliadku.
Veronika Dedáčková
+421 911 290 837
dedackova@nikareal.sk
Ulica: | Jabloňová |
---|---|
Obec: | Biely Kostol |
Okres: | Trnava |
Kraj: | Trnavský kraj |
Druh: | Domy |
Typ: | Predaj |
Typ domu: | Rodinný dom |