Používame cookies

Súbory cookie a ďalšie technológie sledovania používame na zlepšenie vášho zážitku z prehliadania našich webových stránok, na to, aby sme vám zobrazovali prispôsobený obsah a cielené reklamy, na analýzu návštevnosti našich webových stránok a na pochopenie toho, odkiaľ naši návštevníci prichádzajú. Viac info

Kráľovské bývanie - Smart A 4

  • Exkluzívna ponuka

Popis nehnuteľnosti

Zdieľať na Facebooku

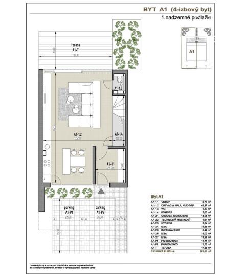
NikaReal Vám exkluzívne ponúka na predaj Smart A 4 - štvorizbový dvojpodlažný byt s podlahovou plochou 117,60 m2 v rodinnom dvoj-dome s praktickou dispozíciou a priestrannou terasou o výmere 17,55 m2. Pozemok má výmeru 304 m2.
V cene je dokončenie do štádia holobyt s podlahovým kúrením a chladením s tepelným čerpadlo zn. Viessmann s integrovaným zásobníkom na TUV - 220 l. 

Dispozícia:

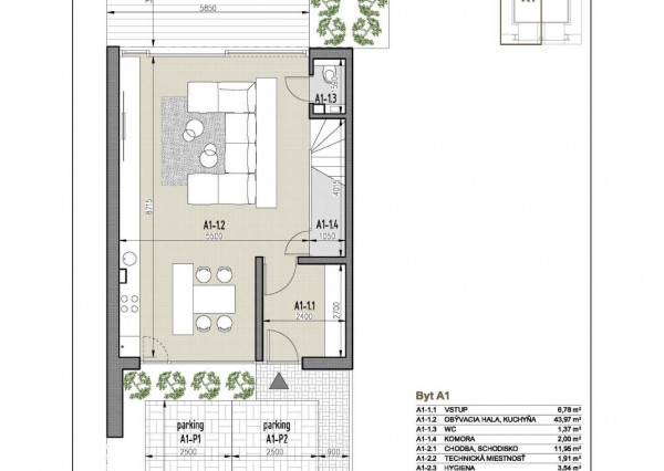
Prízemie  - 54,12 m2

  • Vstupná chodba - 6,78 m2
  • Obývacia izba s kuchyňou a jedálňou - 43,97 m2s východom na terasu 
  • Komora - 2 m2
  • WC s umývadlom - 1,37 m2

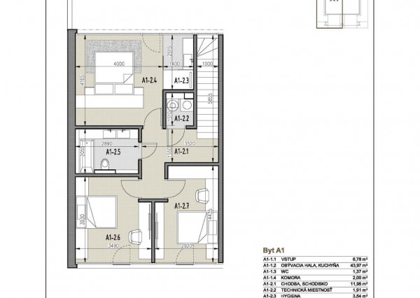
Poschodie - 64,44 m2

  • Chodba a schodisko - 11,95 m2
  • 2x detská izba s francúzskym balkónom - 13,02 m2 a 11,95 m2
  • Kúpeľňa s vaňou, WC a dvoj-umývadlom - 5,42 m2
  • Spálňa 16,65 ms kúpeľňou - 3,54 m2
  • Technická miestnosť - 1,91 ms tepelným čerpadlom a priestorom na práčku 

Exteriér - 215 mbez zastavanej plochy RD. Celková výmera pozemku je 304 m2.

  • 2x parkovacie miesto - 27,50 m2 + chodník pred domom
  • Chodník vedľa domu z parkoviska na terasu
  • Terasa - 17,55 m2 orientovaná na juhovýchod
  • Záhradka
  • Zastavaná plocha 89 m2

Zaujala Vás táto ponuka? Neváhajte ma kontaktovať a rezervovať si termín obhliadky. 

Veronika Dedáčková 
+421 911 290 837
dedackova@nikareal.sk
Kráľovské Bývanie v Kráľovej pri Senci | NikaReal 

Vlastnosti

Status:
aktívne
Vlastníctvo:
korporácia
Plocha pozemku:
304 m2
Typ zeme:
rovina
Úžitková plocha:
117.6 m2
Zastavaná plocha:
89 m2
Podlahová plocha:
117.6 m2
Stav:
novostavba
Počet izieb:
4
Energetický certifikát:
A
Energetická náročnosť budovy:
Nízkoenergetický
Terasa:
áno
Počet poschodí od prízemia vyššie:
2
Terasa plocha:
17.55 m2
Počet terás:
1
Počet vonkajších parkovacích miest:
2
Orientácia:
severozápad
Inžinierske siete:
áno
Voda:
áno
Elektrika:
áno
Kanalizácia:
áno
Vykurovanie - podlahové:
áno
Optická sieť:
áno

Hypotekárna kalkulačka

299 000 €
Interné ID: Smart A4
Ulica: Nová
Obec: Kráľová pri Senci
Okres: Senec
Kraj: Bratislavský kraj
Druh: Domy
Typ: Predaj
Typ domu: Rodinný dom

Radi Vám poradíme