 
                                                                                                        Veľký, čiastočne zrekonštruovaný rodinný dom v centre obce, len 10 min. od Trnavy
- Predaj
- Rodinný dom
- 310.5 m2
- Cífer
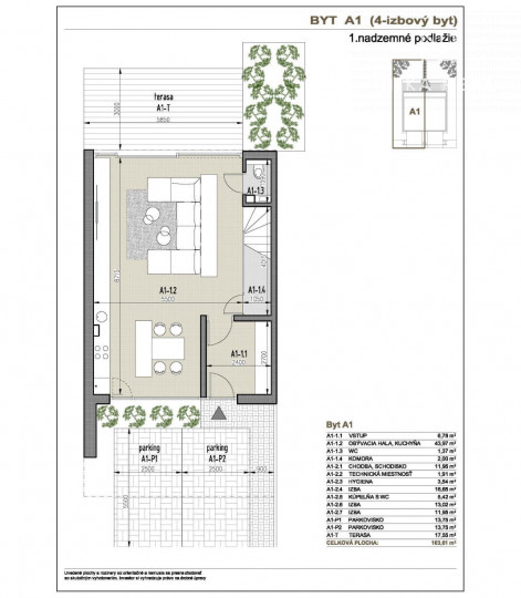
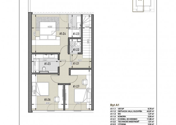
NikaReal Vám exkluzívne ponúka na predaj Smart A 3 - štvorizbový dvojpodlažný byt s podlahovou plochou 117,60 m2 v rodinnom dvoj-dome s praktickou dispozíciou a priestrannou terasou o výmere 17,55 m2. Pozemok má výmeru 299 m2.
V cene je dokončenie do štádia holobyt s podlahovým kúrením a chladením s tepelným čerpadlo zn. Viessmann s integrovaným zásobníkom na TUV - 220 l. 
Prízemie - 54,12 m2
Poschodie - 64,44 m2
Exteriér - 210 m2 bez zastavanej plochy RD. Celková výmera pozemku je 299 m2.
Zaujala Vás táto ponuka? Neváhajte ma kontaktovať a rezervovať si termín obhliadky.
Veronika Dedáčková 
+421 911 290 837
dedackova@nikareal.sk
Kráľovské Bývanie v Kráľovej pri Senci | NikaReal 
| Interné ID: | Smart A3 | 
|---|---|
| Ulica: | Nová | 
| Obec: | Kráľová pri Senci | 
| Okres: | Senec | 
| Kraj: | Bratislavský kraj | 
| Druh: | Domy | 
| Typ: | Predaj | 
| Typ domu: | Rodinný dom |