Používame cookies

Súbory cookie a ďalšie technológie sledovania používame na zlepšenie vášho zážitku z prehliadania našich webových stránok, na to, aby sme vám zobrazovali prispôsobený obsah a cielené reklamy, na analýzu návštevnosti našich webových stránok a na pochopenie toho, odkiaľ naši návštevníci prichádzajú. Viac info

Kráľovské Bývanie - Comfort A 4

  • Exkluzívna ponuka

Popis nehnuteľnosti

Zdieľať na Facebooku

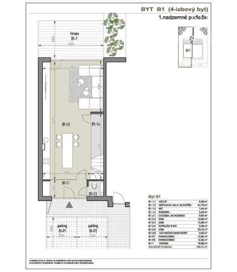
NikaReal Vám exkluzívne ponúka na predaj Comfort A 4 - štvorizbový dvojpodlažný byt s podlahovou plochou 119,80 m2 v rodinnom dvoj-dome s praktickou dispozíciou a priestrannou terasou o výmere 16,58 m2. Pozemok má výmeru 283 m2.
V cene je dokončenie do štádia holobyt s podlahovým kúrením a chladením s tepelným čerpadlo zn. Viessmann s integrovaným zásobníkom na TUV - 220 l. 

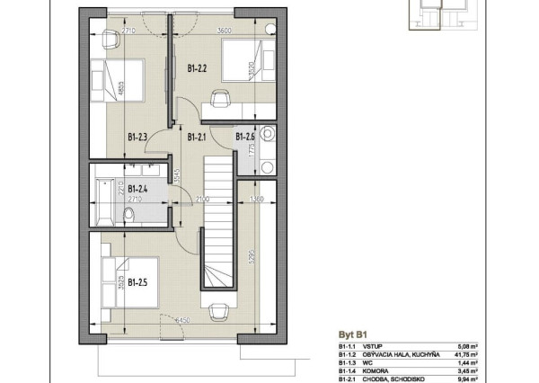
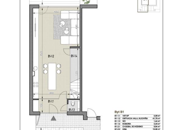
Dispozícia:

Prízemie  - 51,72 m2

  • Vstupná chodba - 5,08 m2
  • Obývacia izba s kuchyňou a jedálňou - 41,75 m2s východom na terasu 
  • Komora - 3,45 m2
  • WC s umývadlom - 1,44 m2

Poschodie - 67,24 m2

  • Chodba a schodisko - 9,94 m2
  • 2x detská izba s francúzskym balkónom - 12,90 m2 a 13,38 m2
  • Kúpeľňa s vaňou, WC a dvoj-umývadlom - 5,38 m2
  • Spálňa so šatníkom 23,12 m
  • Technická miestnosť - 2,52 ms tepelným čerpadlom a priestorom na práčku 

Exteriér - 185 m2 bez zastavanej plochy RD. Celková výmera pozemku je 283 m2.

  • 2x parkovacie miesto - 25 m2 + chodník pred domom
  • Chodník vedľa domu z parkoviska na terasu
  • Terasa - 16,58 m2 orientovaná na severo-západ
  • Záhradka
  • Zastavaná plocha 98 m2

Zaujala Vás táto ponuka? Neváhajte ma kontaktovať a rezervovať si termín obhliadky. 

Veronika Dedáčková 
+421 911 290 837
dedackova@nikareal.sk
Kráľovské Bývanie v Kráľovej pri Senci | NikaReal 

Vlastnosti

Status:
rezervované
Plocha pozemku:
283 m2
Typ zeme:
rovina
Úžitková plocha:
119.8 m2
Zastavaná plocha:
98 m2
Podlahová plocha:
119.8 m2
Stav:
novostavba
Počet izieb:
4
Energetický certifikát:
A
Energetická náročnosť budovy:
Nízkoenergetický
Terasa:
áno
Počet poschodí od prízemia vyššie:
2
Terasa plocha:
16.58 m2
Počet terás:
1
Počet vonkajších parkovacích miest:
2
Orientácia:
severozápad
Inžinierske siete:
áno
Voda:
áno
Elektrika:
áno
Kanalizácia:
áno
Vykurovanie - podlahové:
áno
Optická sieť:
áno

Hypotekárna kalkulačka

Rezervované
Interné ID: Comfort A4
Ulica: Nová
Obec: Kráľová pri Senci
Okres: Senec
Kraj: Bratislavský kraj
Druh: Domy
Typ: Predaj
Typ domu: Rodinný dom

Radi Vám poradíme