Používame cookies

Súbory cookie a ďalšie technológie sledovania používame na zlepšenie vášho zážitku z prehliadania našich webových stránok, na to, aby sme vám zobrazovali prispôsobený obsah a cielené reklamy, na analýzu návštevnosti našich webových stránok a na pochopenie toho, odkiaľ naši návštevníci prichádzajú. Viac info

Moderné rodinné domy v Bielom Kostole

  • Exkluzívna ponuka

Popis developerského projektu

Zdieľať na Facebooku

Exkluzívne iba u nás na predaj krásne, nízkoenergetické 4-izbové rodinné domy vo vyhľadávanej lokalite, len pár minút od krajského mesta Trnava.

Rodinné domy typu bungalov na pozemkoch o výmere od 550 m². Podlahová plocha domov od 115,19 m² + čiastočne prestrešená terasa o výmere 22,28 m².
Projekt domu je rozdelený na dennú a nočnú časť s dostatkom úložného priestoru. 1x spálňa s walk-in šatníkom; 2x detská izba; 2x kúpeľňa; technická miestnosť s tepelným čerpadlom, umývadlom a miestom pre práčku a sušičku; kuchyňa s komorou; jedálenský kút; obývačka s krbom a výstupom na terasu; terasa s prestrešením. 

Domy budú dokončené do štádia holodom s terasou, parkovaním pre 3 autá, oplotením, tepelným čerpadlom aj prípravou na solárne / fotovoltaické panely. Výhodou je aj príprava na exteriérové žalúzie, videovrátnika, alarm aj kamerový systém. Nová cesta, chodníky a inžinierske siete už sú vo finálnej fáze realizácie. Výstavba domu môže začať a Vy sa môžete tešiť na krásne a kvalitné nové bývanie v dome podľa Vašich predstáv. 

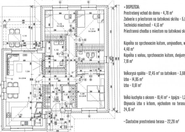
DISPOZÍCIA:

  • Prestrešený vchod do domu - 4,78 m²
  • Zádverie s priestorom na šatníkovú skriňu - 5,04 m²
  • Technická miestnosť - 4,13 m²
  • Priestranná chodba s miestom na šatníkovú skriňu - 11,20 m²
  • Kúpeľňa s umývadlom, sprchovacím kútom, wc a bidetom - 4,48 m²
  • Kúpeľňa s vaňou, sprchovacím kútom, dvojumývadlom a druhou toaletou - 7,19 m²
  • Veľkorysá spálňa - 12,45 m² so šatníkom - 3,68 m²
  • Izba - 14,85 m²
  • Izba - 11,61 m²
  • Veľká kuchyňa s oknom - 10,41 m² + špajza - 1,22 m²
  • Obývacia izba s krbom, východom na terasu + jedáleň - 24,15 m²
  • Čiastočne prestrešená terasa - 22,28 m² 

LOKALITA:
Rodinný dom bude postavený v tichej ulici len pár minút jazdy autom od Trnavy, v obci Biely Kostol. V pešej dostupnosti je veľmi dobrá občianska vybavenosť. Nájdete tu potraviny, materskú aj základnú školu, lekáreň, pizzeriu, kaviareň, záhradkárstvo, pneuservis, ai. Táto lokalita poskytuje široké možnosti na voľnočasové aktivity. V blízkosti nájdete rôzne športoviská, rybník, kúpalisko, golfové ihrisko, cyklotrasy. Na turistiku môžete využiť Malé Karpaty, ktoré sú vzdialené len 15 min. jazdy autom. Výhodou je cyklochodník, ktorým sa dostanete do Trnavy.

CENA a SLUŽBY:
Cena je vrátane kompletného realitného a právneho servisu, vypracovania zmluvnej dokumentácie, prevodu vlastníckych práv, protokolárneho odovzdania nehnuteľnosti a prepisu energií. Nehnuteľnosť Vám bude odovzdaná spolu s kompletnou projektovou dokumentáciou, revíznymi správami a energetickým certifikátom triedy A0. V prípade potreby Vám zabezpečíme aj financovanie nehnuteľnosti prostredníctvom hypotekárneho úveru. 

Srdečne Vás pozývam na obhliadku, ktorá je možná 7 dní v týždni. Raz vidieť je viac ako 100krát počuť :) 


Zaujala Vás táto ponuka? Neváhajte ma kontaktovať a dohodnúť si nezáväznú obhliadku. 

Veronika Dedáčková 
+421 911 290 837
dedackova@nikareal.sk

Zoznam objektov

Číslo
Rozloha pozemku
Úžitková plocha
Počet poschodí
Dostupnosť
Cena
 
Číslo:
RD 1
Rozloha pozemku:
550 m2
Úžitková plocha:
138 m2
Počet poschodí:
Stav:
aktívne
Cena:
PRIPRAVUJEME
Číslo:
RD 2
Rozloha pozemku:
550 m2
Úžitková plocha:
138 m2
Počet poschodí:
Stav:
aktívne
Cena:
PRIPRAVUJEME
Číslo:
RD 3
Rozloha pozemku:
551 m2
Úžitková plocha:
138 m2
Počet poschodí:
Stav:
aktívne
Cena:
PRIPRAVUJEME
Číslo:
RD 4
Rozloha pozemku:
550 m2
Úžitková plocha:
Počet poschodí:
Stav:
aktívne
Cena:
PRIPRAVUJEME
Číslo:
RD 5
Rozloha pozemku:
550 m2
Úžitková plocha:
Počet poschodí:
Stav:
aktívne
Cena:
PRIPRAVUJEME
Číslo:
RD 6
Rozloha pozemku:
550 m2
Úžitková plocha:
Počet poschodí:
Stav:
aktívne
Cena:
PRIPRAVUJEME
Číslo:
RD 7
Rozloha pozemku:
551 m2
Úžitková plocha:
Počet poschodí:
Stav:
aktívne
Cena:
PRIPRAVUJEME
Číslo:
RD 8
Rozloha pozemku:
932 m2
Úžitková plocha:
Počet poschodí:
Stav:
aktívne
Cena:
PRIPRAVUJEME
Číslo:
RD 9
Rozloha pozemku:
601 m2
Úžitková plocha:
Počet poschodí:
Stav:
aktívne
Cena:
PRIPRAVUJEME

Vlastnosti

Status:
aktívne
Vlastníctvo:
osobné
Stav:
Vo výstavbe
Energetický certifikát:
A
Energetická náročnosť budovy:
Nízkoenergetický
Typ budovy:
tehla
Terasa:
áno
Inžinierske siete:
áno
Voda:
áno
Elektrika:
áno
Kanalizácia:
áno
Voda - na pozemku:
áno
Elektrika - na pozemku:
áno
Kanalizácia - na pozemku - kanalizácia:
áno
Optická sieť:
áno
PRIPRAVUJEME
Ulica: Sadová / Záhradná
Obec: Biely Kostol
Okres: Trnava
Kraj: Trnavský kraj
Druh: Developerské projekty
Typ: Predaj
Typ projektu: Výstavba domov
Iné:

Radi Vám poradíme